CREST TAPP名古屋山王 物件詳細情報

| 沿線・駅 所在地 |
賃料 共益費(管理費) |
敷金 礼金 |
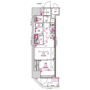
間取り 専有面積 |
種別 建築年月日 |
|
|---|---|---|---|---|---|
|
名鉄名古屋本線 山王駅(徒歩9分)
愛知県名古屋市中川区西日置1丁目 |
55,800円 20,000円 |
- - |
1DK 26.38m2 |
分譲賃貸 2026年2月 |
|
ミニミニの仲介手数料は家賃の55%(税込)です。※直営店は全店対象。但し、駐車場・店舗・事務所・業者仲介及び紹介契約は対象外。※FC店舗は対象外ですので、各店にお問い合わせください。
この物件のお問い合わせ番号 0001-S000108878-0007
外観・間取り図
情報登録日:2026/03/08 情報更新日:2026/03/13 次回更新予定日:2026/03/20
インターネット使用料無料、宅配BOX、浴室乾燥機等嬉しい設備が満載です!ペット飼育時、1匹につき敷金1ヶ月+賃料100円UP(小型犬・猫 合計2匹まで)
パノラマ
設備
| 部屋設備 | ガス給湯 / 浴室給湯あり / キッチン給湯あり / 洗面所給湯あり / TV付モニターホン / インターホン / 下駄箱 / ガスコンロ(コンロ(2口)) / エアコン / バルコニー / 洋式トイレ / シャワー / 浴室乾燥機 / 洗髪洗面化粧台 / 洗面化粧台 / 室内洗濯機置場 / バストイレ別 / シャワー付トイレ / クロゼット / 洗面所独立 / システムキッチン / オンライン内見 / オンライン接客 / IT重説 |
|---|---|
| 建物設備 | エレベータ / オートロック / 宅配ボックス / ペット可(犬・猫可) / 特約有り / ネット利用料無料 / ネット環境(光ファイバ対応) / CATV / 敷地内ゴミ置き場 / 防犯カメラ |
物件詳細
| 交通機関 | ・名鉄名古屋本線 山王駅(徒歩9分) ・あおなみ線 ささしまライブ駅(徒歩15分) ・地下鉄鶴舞線 大須観音駅(徒歩16分) | ||||
|---|---|---|---|---|---|
| 構造 | RC造 | 方位 | 北 | 階数/総階数 | 6階/15階建て |
| 総戸数 | 84戸 | 駐車場 | - | 入居日 | 即入居可 |
| 環境 | 名古屋市立広見小学校 (567m) / 名古屋市立山王中学校 (1,099m) / 名古屋西日置郵便局 (393m) / ヤマナカ松原店 (1,035m) / ミニストップ西日置店 (280m) / マツモトキヨシグローバルゲート店 (1,158m) / テラッセ納屋橋 (1,424m) | ||||
| 内装代 | - | 償却 | 0円 | 保険 | 損保要 |
| 更新料 | - | 水道料金等預かり金 | - | 特記事項 | - |
| 飲用水 | 公営 | ガス | 都市 | 排水 | 公共下水 |
| 給湯方式 | ガス給湯(浴室給湯あり・キッチン給湯あり・洗面所給湯あり) | ||||
その他の費用
| 毎月 | 24H駆けつけサービス:990円 |
|---|---|
| 一時 | 退去時室内清掃費:38,500円/退去時エアコンクリーニング費:16,500円/消毒料:17,600円/防災セット:14,400円/ファイテック消火剤:4,800円 |
| 他 | 家賃保証会社 初回保証料30% 更新保証料1年毎10,000円 |
この物件のお問い合わせ番号 0001-S000108878-0007
類似物件一覧
-
5.8万円
-
-
-
5.9万円
-
1.0ヶ月
1K
愛知県名古屋市中川区露橋1丁目 -
5.1万円
-
70,000円
1LDK
愛知県名古屋市中川区一色新町3丁目 -
4.0万円
80,000円
-
1R
愛知県名古屋市中川区福船町4丁目 -
6.9万円
-
-
1K
愛知県名古屋市中川区南八熊町 -
5.9万円
-
-
1K
愛知県名古屋市中川区太平通4丁目 -
4.5万円
45,000円
-
1DK
愛知県名古屋市中川区法華西町 -
6.2万円
62,000円
-
1K
愛知県名古屋市中川区山王2丁目 -
6.7万円
-
1.0ヶ月
1K
愛知県名古屋市中川区福住町 -
6.4万円
-
1.0ヶ月
1K
愛知県名古屋市中川区福住町 -
6.2万円
-
-
1LDK
愛知県名古屋市中川区西日置2丁目 -
4.7万円
-
-
1K
愛知県名古屋市中川区尾頭橋3丁目
店舗情報
お電話での物件問い合わせは無料通話で!(直営店のみ)
0001-S000108878-0007
- 名古屋東口店
-
この物件で来店予約- 来店予約フォーム -
-
無料通話番号を表示
- 地下鉄東山線 名古屋駅(徒歩6分)
- Tel: 052-571-3032
- 店舗詳細情報
このお部屋にお問い合わせ
あわせて店舗への来店を希望のお客様は、上の希望店舗の来店予約フォームをご利用ください(直営店舗のみ)
Sorry,Japanese & English only. 日本語・英語のみ対応しております。ご了承ください。
- ※取扱形態は媒介(先物)です。 / お部屋の情報は随時更新です / 各種情報と現況に差異がある場合は、現況優先となります。 / 保証会社の審査があります。 / 契約一時金は、契約時に借主より貸主に支払われ返還されない金銭です。

この物件のかんたんお問合せフォーム
お電話でお問合せ(無料)

























愛知県名古屋市中川区百船町