S−RESIDENCE烏森aureate(オリート) 物件詳細情報
| 沿線・駅 所在地 |
賃料 共益費(管理費) |
敷金 礼金 |
間取り 専有面積 |
種別 建築年月日 |
|
|---|---|---|---|---|---|
|
近鉄名古屋線 烏森駅(徒歩5分)
愛知県名古屋市中村区牛田通2丁目 |
71,500円 8,000円 |
- 71,500円 |
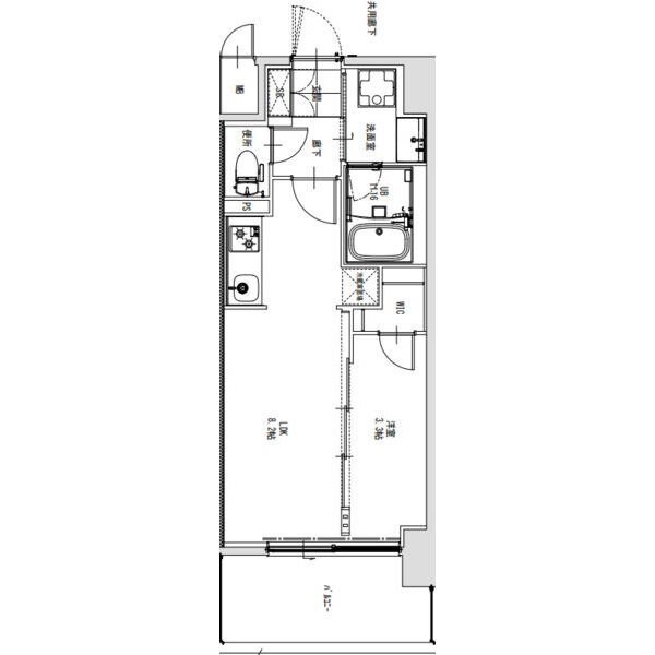
1LDK 29.30m2 |
マンション 2025年11月 |
|
ミニミニの仲介手数料は家賃の55%(税込)です。※直営店は全店対象。但し、駐車場・店舗・事務所・業者仲介及び紹介契約は対象外。※FC店舗は対象外ですので、各店にお問い合わせください。
この物件のお問い合わせ番号 0001-S000104384-0015
この浮いたお金でうまくやりくりを!敷金(保証金)0円。フットワークが軽くなる烏森駅徒歩5分ロケーション、更にマイ自転車を格納できる駐輪場完備だから、自転車ライフにベストフィット。

- 名古屋市立柳小学校

- 名古屋市立御田中学校

- 保育所型認定こども園柳保育園

- 名古屋市烏森保育園

- 大坪街園

- 平和堂豊成店

- セブンイレブン名古屋牛田通店
パノラマ
設備
| 部屋設備 | ガス給湯 / 浴室給湯あり / キッチン給湯あり / 洗面所給湯あり / TV付モニターホン / インターホン / 下駄箱 / エアコン / フローリング / バルコニー / 洋式トイレ / シャワー / 浴室乾燥機 / 洗髪洗面化粧台 / 洗面化粧台 / 室内洗濯機置場 / バストイレ別 / 保証人不要 / コンロ(コンロ(2口)) / シャワー付トイレ / クロゼット / 洗面所独立 / システムキッチン / オンライン内見 / オンライン接客 |
|---|---|
| 建物設備 | オートロック / 駐輪場 / 宅配ボックス / ネット利用料無料 |
物件詳細
| 交通機関 | ・近鉄名古屋線 烏森駅(徒歩5分) ・近鉄名古屋線 黄金駅(徒歩9分) ・地下鉄東山線 岩塚駅(徒歩15分) | ||||
|---|---|---|---|---|---|
| 構造 | RC造 | 方位 | 東 | 階数/総階数 | 10階/12階建て |
| 総戸数 | 62戸 | 駐車場 | 13,200円 | 入居日 | 即入居可 |
| 環境 | 名古屋市立柳小学校 (553m) / 名古屋市立御田中学校 (1,550m) / 保育所型認定こども園柳保育園 (85m) / 名古屋市烏森保育園 (822m) / 愛知県立松蔭高校 (579m) / 名古屋市中村区役所 (2,719m) / 名古屋牛田通郵便局 (185m) / 中村警察署 (2,569m) / 大坪街園 (1,035m) / 偕行会城西病院 (283m) / あいち銀行豊成支店 (555m) / ナフコトミダ千成店 (666m) / アオキスーパー烏森店 (1,051m) / 平和堂豊成店 (1,281m) / セブンイレブン名古屋牛田通店 (125m) / V・drug黄金店 (807m) / エディオン中村白子店 (581m) / 私立愛知大学名古屋キャンパス (2,246m) / あみやき亭畑江通店 (171m) / ワークマンプラス中川澄池店 (1,585m) | ||||
| 内装代 | - | 償却 | 0円 | 保険 | 損保要 |
| 更新料 | 71,500円 | 水道料金等預かり金 | - | 特記事項 | - |
| 飲用水 | 公営 | ガス | 都市 | 排水 | 公共下水 |
| 給湯方式 | ガス給湯(浴室給湯あり・キッチン給湯あり・洗面所給湯あり) | ||||
その他の費用
| 他 | 家賃保証会社 初回保証料50% 更新料1年/12,000円 |
|---|
この物件のお問い合わせ番号 0001-S000104384-0015
類似物件一覧
-
8.9万円
-
-
-
8.5万円
-
1.0ヶ月
1LDK
愛知県名古屋市中村区靖国町1丁目 -
8.0万円
80,000円
1.0ヶ月
1LDK
愛知県名古屋市中村区靖国町1丁目 -
6.5万円
65,000円
-
1LDK
愛知県名古屋市中村区竹橋町 -
8.3万円
-
-
1LDK
愛知県名古屋市中村区名駅南3丁目 -
9.0万円
90,000円
-
1LDK
愛知県名古屋市中村区那古野1丁目 -
7.0万円
70,000円
-
1DK
愛知県名古屋市中村区則武1丁目 -
6.6万円
-
-
1LDK
愛知県名古屋市中村区中村中町1丁目 -
5.7万円
57,000円
-
1DK
愛知県名古屋市中村区大日町 -
6.3万円
63,000円
-
1LDK
愛知県名古屋市中村区畑江通3丁目 -
8.2万円
-
-
1LDK
愛知県名古屋市中村区名駅南3丁目 -
6.6万円
-
-
1LDK
愛知県名古屋市中村区中村中町1丁目
店舗情報
お電話での物件問い合わせは無料通話で!(直営店のみ)
0001-S000104384-0015
- 八田店
-
この物件で来店予約- 来店予約フォーム -
-
無料通話番号を表示
- 地下鉄東山線 八田駅(徒歩1分)
- Tel: 052-365-3220
- 店舗詳細情報
このお部屋にお問い合わせ
あわせて店舗への来店を希望のお客様は、上の希望店舗の来店予約フォームをご利用ください(直営店舗のみ)
Sorry,Japanese & English only. 日本語・英語のみ対応しております。ご了承ください。
- ※取扱形態は媒介(先物)です。 / お部屋の情報は随時更新です / 各種情報と現況に差異がある場合は、現況優先となります。 / 保証会社の審査があります。 / 契約一時金は、契約時に借主より貸主に支払われ返還されない金銭です。

この物件のかんたんお問合せフォーム
お電話でお問合せ(無料)
外観・間取り図

























愛知県名古屋市中村区亀島1丁目