S-RESIDENCE庄内通駅前curere 物件詳細情報

| 沿線・駅 所在地 |
賃料 共益費(管理費) |
敷金 礼金 |
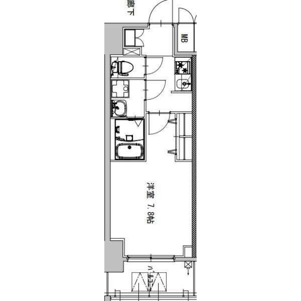
間取り 専有面積 |
種別 建築年月日 |
|
|---|---|---|---|---|---|
|
地下鉄鶴舞線 庄内通駅(徒歩2分)
愛知県名古屋市西区庄内通4丁目 |
67,000円 8,000円 |
- - |
1K 25.23m2 |
マンション 2025年12月 |
|
ミニミニの仲介手数料は家賃の55%(税込)です。※直営店は全店対象。但し、駐車場・店舗・事務所・業者仲介及び紹介契約は対象外。※FC店舗は対象外ですので、各店にお問い合わせください。
この物件のお問い合わせ番号 0001-S000102585-0021
庄内通駅徒歩2分の立地にオートロック付きインターネット無料の新築物件12月中旬完成予定です。イオンタウン名西店が近くにあり生活しやすいエリアです。24時間スーパーやドラッグストアの施設も入ってます。2口ガスコンロやモニター付きインターホンで設備充実してます。駐輪場無料、バイク置き場あり。

- イオンタウン名西店

- ヤマナカ庄内通店

- 名古屋市立庄内小学校

- マックスバリュグランド名西店

- ファミリーマート庄内通店

- COST STATIONミユキモール店

- V・drug名塚店

- エディオン庄内通ミユキモール店

- Yストア笹塚食品館

- 名古屋名塚郵便局

- B&Dドラッグストア又穂店
パノラマ
設備
| 部屋設備 | ガス給湯 / 浴室給湯あり / キッチン給湯あり / 洗面所給湯あり / TV付モニターホン / インターホン / 下駄箱 / ガスコンロ(コンロ(2口)) / エアコン / フローリング / ベランダ / バルコニー / 洋式トイレ / トイレ電源有 / シャワー / 浴室乾燥機 / 洗髪洗面化粧台 / 洗面化粧台 / 室内洗濯機置場 / バストイレ別 / 保証人不要 / シャワー付トイレ / クロゼット / 全居室収納 / 洗面所独立 / システムキッチン / オンライン内見 / オンライン接客 / IT重説 |
|---|---|
| 建物設備 | エレベータ / オートロック / エントランス / 駐輪場 / 宅配ボックス / ネット利用料無料 / ネット環境(光ファイバ対応) / ネット環境(CATV) / CATV / バイク置き場 / 敷地内ゴミ置き場 / 防犯カメラ |
物件詳細
| 交通機関 | ・地下鉄鶴舞線 庄内通駅(徒歩2分) ・地下鉄鶴舞線 庄内緑地公園駅(徒歩16分) ・地下鉄鶴舞線 浄心駅(徒歩20分) | ||||
|---|---|---|---|---|---|
| 構造 | RC造 | 方位 | 東 | 階数/総階数 | 14階/15階建て |
| 総戸数 | 84戸 | 駐車場 | 15,400円 | 入居日 | 即入居可 |
| 環境 | イオンタウン名西店 (492m) / ヤマナカ庄内通店 (776m) / 名古屋市立庄内小学校 (765m) / マックスバリュグランド名西店 (500m) / ファミリーマート庄内通店 (134m) / COST STATIONミユキモール店 (771m) / V・drug名塚店 (339m) / エディオン庄内通ミユキモール店 (778m) / Yストア笹塚食品館 (1,269m) / 名古屋名塚郵便局 (92m) / B&Dドラッグストア又穂店 (770m) / 私立名古屋造形大学 (3,039m) / ゲオ名古屋黒川店 (2,348m) / コメダ珈琲店庄内通店 (81m) / イオンタウン名西 (475m) | ||||
| 内装代 | - | 償却 | 0円 | 保険 | 損保要 |
| 更新料 | 67,000円 | 水道料金等預かり金 | - | 特記事項 | - |
| 飲用水 | 公営 | ガス | 都市 | 排水 | 公共下水 |
| 給湯方式 | ガス給湯(浴室給湯あり・キッチン給湯あり・洗面所給湯あり) | ||||
その他の費用
| 一時 | 入居安心サービス料:17,600円/消毒料:17,600円/防災セット:14,400円/ファイテック消火剤:4,800円/駐車場紹介料:15,400円 |
|---|---|
| 他 | 家賃保証会社 初回保証料50% |
この物件のお問い合わせ番号 0001-S000102585-0021
類似物件一覧
-
4.8万円
96,000円
-
-
7.1万円
-
-
1K
愛知県名古屋市西区則武新町3丁目 -
5.5万円
-
-
1R
愛知県名古屋市西区枇杷島2丁目 -
4.8万円
-
-
1K
愛知県名古屋市西区平中町 -
6.6万円
-
-
1K
愛知県名古屋市西区庄内通3丁目 -
5.5万円
55,000円
-
1DK
愛知県名古屋市西区大野木1丁目 -
5.2万円
-
-
1K
愛知県名古屋市西区枇杷島5丁目 -
6.3万円
-
-
1K
愛知県名古屋市西区新道1丁目 -
5.7万円
57,000円
1.0ヶ月
1K
愛知県名古屋市西区名駅2丁目 -
6.4万円
128,000円
-
1K
愛知県名古屋市西区中小田井4丁目 -
6.1万円
61,000円
-
1K
愛知県名古屋市西区児玉1丁目 -
6.7万円
67,000円
1.0ヶ月
1K
愛知県名古屋市西区新道2丁目
店舗情報
お電話での物件問い合わせは無料通話で!(直営店のみ)
0001-S000102585-0021
- 三重法人部
- 059-356-8041
- 三重県四日市市鵜の森1丁目1-19太平洋鵜の森ビル5階
このお部屋にお問い合わせ
あわせて店舗への来店を希望のお客様は、上の希望店舗の来店予約フォームをご利用ください(直営店舗のみ)
Sorry,Japanese & English only. 日本語・英語のみ対応しております。ご了承ください。
- ※取扱形態は媒介(先物)です。 / お部屋の情報は随時更新です / 各種情報と現況に差異がある場合は、現況優先となります。 / 保証会社の審査があります。 / 契約一時金は、契約時に借主より貸主に支払われ返還されない金銭です。

この物件のかんたんお問合せフォーム
お電話でお問合せ(法人用)
外観・間取り図

























愛知県名古屋市西区中小田井3丁目