プレサンス高畑ルミア 物件詳細情報

| 沿線・駅 所在地 |
賃料 共益費(管理費) |
敷金 礼金 |
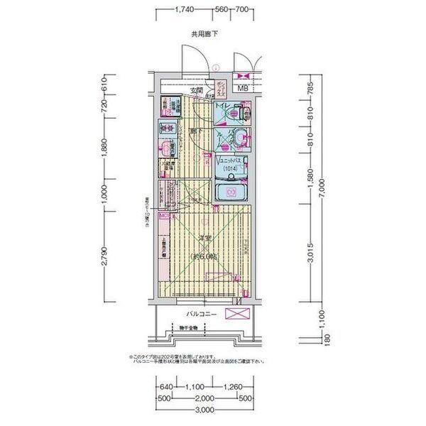
間取り 専有面積 |
種別 建築年月日 |
|
|---|---|---|---|---|---|
|
地下鉄東山線 高畑駅(徒歩3分)
愛知県名古屋市中川区高畑1丁目 |
56,100円 7,250円 |
- - |
1K 21.00m2 |
マンション 2026年2月 |
|
ミニミニの仲介手数料は家賃の55%(税込)です。※直営店は全店対象。但し、駐車場・店舗・事務所・業者仲介及び紹介契約は対象外。※FC店舗は対象外ですので、各店にお問い合わせください。
この物件のお問い合わせ番号 0001-S000102230-0019
アクセスのよい高畑駅徒歩3分なので、買い物もしやすい立地です。衣類が視界に入らず部屋をすっきり見せられるクローゼット付だから、何かと増える物の整理整頓も心強いです。その上洗面スペースが広く使い勝手が良いシャンプードレッサーが朝の身支度の強い助っ人になります。配達状況を気にせず外出できる宅配BOX付で、その上電気水道と同様のインフラとなったインターネット使用料無料なので、毎月の通信費を気にせず楽しめ便利です。

- 名古屋市立野田小学校

- 名古屋市立一柳中学校

- たかばた保育園

- 名古屋荒子郵便局

- 名古屋市中川図書館

- 医療法人純正会名古屋西病院

- フィールアイアイプラザ

- ミニストップ高畑駅前店

- スギ薬局高畑店

- ゲオ名古屋高畑店

- 無添くら寿司名古屋高畑店

- フィールアイアイプラザ
パノラマ
設備
| 部屋設備 | ガス給湯 / 浴室給湯あり / キッチン給湯あり / 洗面所給湯あり / TV付モニターホン / 下駄箱 / エアコン / 照明器具 / ベランダ / バルコニー / 洋式トイレ / シャワー / 浴室乾燥機 / 洗髪洗面化粧台 / 洗面化粧台 / 追焚き / 室内洗濯機置場 / バストイレ別 / シャワー付トイレ / クロゼット / 洗面所独立 / IT重説 |
|---|---|
| 建物設備 | エレベータ / オートロック / 宅配ボックス / BSアンテナ / 防犯カメラ |
物件詳細
| 交通機関 | ・地下鉄東山線 高畑駅(徒歩3分) ・あおなみ線 荒子駅(徒歩9分) ・地下鉄東山線 八田駅(徒歩13分) | ||||
|---|---|---|---|---|---|
| 構造 | RC造 | 方位 | 東 | 階数/総階数 | 8階/13階建て |
| 総戸数 | 57戸 | 駐車場 | - | 入居日 | 2026年2月下旬 |
| 環境 | 名古屋市立野田小学校 (1,148m) / 名古屋市立一柳中学校 (1,392m) / たかばた保育園 (336m) / 名古屋荒子郵便局 (284m) / 名古屋市中川図書館 (813m) / 医療法人純正会名古屋西病院 (401m) / フィールアイアイプラザ (1,040m) / ミニストップ高畑駅前店 (302m) / スギ薬局高畑店 (144m) / ゲオ名古屋高畑店 (1,017m) / 無添くら寿司名古屋高畑店 (340m) / フィールアイアイプラザ (1,040m) | ||||
| 内装代 | - | 償却 | 0円 | 保険 | 損保要 |
| 更新料 | 11,000円 | 水道料金等預かり金 | - | 特記事項 | - |
| 飲用水 | 公営 | ガス | 都市 | 排水 | 公共下水 |
| 給湯方式 | ガス給湯(浴室給湯あり・キッチン給湯あり・洗面所給湯あり) | ||||
その他の費用
| 毎月 | プレサポ24:990円 |
|---|---|
| 一時 | カギ調整代:22,000円/防災セット:14,400円/ファイテック消火剤:4,800円/消毒料:17,600円 |
| 他 | 家賃保証会社 初回保証料50% 毎月賃料等請求金額の合計1.5% |
この物件のお問い合わせ番号 0001-S000102230-0019
類似物件一覧
-
5.1万円
-
1.0ヶ月
-
6.4万円
-
-
1K
愛知県名古屋市中川区幡野町 -
4.5万円
-
-
1K
愛知県名古屋市中川区宗円町1丁目 -
6.4万円
-
-
1K
愛知県名古屋市中川区八田町 -
4.3万円
-
1.0ヶ月
1K
愛知県名古屋市中川区乗越町3丁目 -
6.3万円
-
-
1K
愛知県名古屋市中川区幡野町 -
5.0万円
50,000円
-
1R
愛知県名古屋市中川区広川町2丁目 -
4.5万円
-
-
1K
愛知県名古屋市中川区外新町2丁目 -
5.9万円
-
1.0ヶ月
1K
愛知県名古屋市中川区露橋1丁目 -
6.4万円
-
1.0ヶ月
1K
愛知県名古屋市中川区福住町 -
5.9万円
-
-
1K
愛知県名古屋市中川区百船町 -
6.2万円
-
62,000円
1K
愛知県名古屋市中川区幡野町
店舗情報
お電話での物件問い合わせは無料通話で!(直営店のみ)
0001-S000102230-0019
- 三重法人部
- 059-356-8041
- 三重県四日市市鵜の森1丁目1-19太平洋鵜の森ビル5階
このお部屋にお問い合わせ
あわせて店舗への来店を希望のお客様は、上の希望店舗の来店予約フォームをご利用ください(直営店舗のみ)
Sorry,Japanese & English only. 日本語・英語のみ対応しております。ご了承ください。
- ※取扱形態は媒介(先物)です。 / お部屋の情報は随時更新です / 各種情報と現況に差異がある場合は、現況優先となります。 / 保証会社の審査があります。 / 契約一時金は、契約時に借主より貸主に支払われ返還されない金銭です。

この物件のかんたんお問合せフォーム
お電話でお問合せ(法人用)
外観・間取り図

























愛知県名古屋市中川区太平通1丁目