ディアレイシャス名古屋浄心 物件詳細情報

| 沿線・駅 所在地 |
賃料 共益費(管理費) |
敷金 礼金 |
間取り 専有面積 |
種別 建築年月日 |
|
|---|---|---|---|---|---|
|
地下鉄鶴舞線 浄心駅(徒歩7分)
愛知県名古屋市西区花の木2丁目 |
60,000円 8,000円 |
- - |
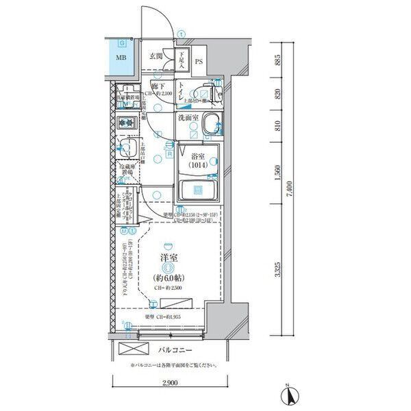
1K 21.46m2 |
分譲賃貸 2025年7月 |
|
ミニミニの仲介手数料は家賃の55%(税込)です。※直営店は全店対象。但し、駐車場・店舗・事務所・業者仲介及び紹介契約は対象外。※FC店舗は対象外ですので、各店にお問い合わせください。
この物件のお問い合わせ番号 0001-S000098583-0010
西区花の木は閑静なエリアです。全室南向きで日当たり良好。インターネット無料、WIFI無料で毎月の費用抑えれます。新築、オートロック、都市ガス、2口ガスコンロ、浴室乾燥機など設備充実です。 スーパー、ドラッグストア、コンビニなどが徒歩圏内にあり生活便利です。

- フィール花の木店
パノラマ
設備
| 部屋設備 | ガス給湯 / 浴室給湯あり / キッチン給湯あり / 洗面所給湯あり / TV付モニターホン / 下駄箱 / ガスコンロ(コンロ(2口)) / エアコン / フローリング / 照明器具 / ベランダ / バルコニー / 洋式トイレ / トイレ電源有 / シャワー / 浴室乾燥機 / 洗髪洗面化粧台 / 洗面化粧台 / 室内洗濯機置場 / バストイレ別 / 保証人不要 / シャワー付トイレ / クロゼット / 洗面所独立 / システムキッチン / オンライン内見 / オンライン接客 / IT重説 |
|---|---|
| 建物設備 | エレベータ / オートロック / エントランス / 駐輪場 / 宅配ボックス / ネット利用料無料 / ネット環境(光ファイバ対応) / BSアンテナ / CSアンテナ / 敷地内ゴミ置き場 / 防犯カメラ |
物件詳細
| 交通機関 | ・地下鉄鶴舞線 浄心駅(徒歩7分) ・地下鉄鶴舞線 浅間町駅(徒歩10分) ・地下鉄鶴舞線 庄内通駅(徒歩23分) | ||||
|---|---|---|---|---|---|
| 構造 | RC造 | 方位 | 南 | 階数/総階数 | 11階/15階建て |
| 総戸数 | 56戸 | 駐車場 | 17,000円 | 入居日 | 即入居可 |
| 環境 | 名古屋市立天神山中学校 (453m) / 名古屋天神山郵便局 (381m) / 西警察署 (289m) / いちい信用金庫浄心支店 (436m) / フィール花の木店 (356m) / ヨシヅヤ名古屋名西店 (1,354m) / ファミリーマート城西三丁目店 (435m) / ウエルシア名古屋花の木店 (324m) / ドラッグユタカ押切店 (523m) / ヤマダデンキテックランドヨシヅヤ名西店 (1,339m) / ゲオ名古屋亀島店 (2,321m) / ベントマン天神山店 (409m) / 餃子の王将浄心店 (552m) / イッツボナンザシティヨシヅヤ名古屋名西店 (1,360m) | ||||
| 内装代 | - | 償却 | 0円 | 保険 | 損保要 |
| 更新料 | 60,000円 | 水道料金等預かり金 | - | 特記事項 | - |
| 飲用水 | 公営 | ガス | 都市 | 排水 | 公共下水 |
| 給湯方式 | ガス給湯(浴室給湯あり・キッチン給湯あり・洗面所給湯あり) | ||||
その他の費用
| 毎月 | くらしーど24:1,100円 |
|---|---|
| 一時 | 消毒料:17,600円/防災グッズ:14,400円/ファイテック消火剤:4,800円 |
| 他 | 家賃保証会社 初回保証料50% 毎月賃料等請求金額の合計1% |
この物件のお問い合わせ番号 0001-S000098583-0010
類似物件一覧
-
5.7万円
-
67,200円
-
6.9万円
-
1.0ヶ月
1K
愛知県名古屋市西区庄内通4丁目 -
4.2万円
42,000円
-
1K
愛知県名古屋市西区上小田井1丁目 -
4.4万円
44,000円
-
1K
愛知県名古屋市西区市場木町 -
6.0万円
-
-
1K
愛知県名古屋市西区菊井2丁目 -
6.3万円
-
1.0ヶ月
1R
愛知県名古屋市西区庄内通4丁目 -
4.8万円
48,000円
-
1R
愛知県名古屋市西区香呑町6丁目 -
5.9万円
-
1.0ヶ月
1K
愛知県名古屋市西区幅下2丁目 -
5.4万円
54,000円
-
1K
愛知県名古屋市西区中小田井2丁目 -
5.1万円
-
-
1K
愛知県名古屋市西区中小田井5丁目 -
5.2万円
-
-
1K
愛知県名古屋市西区稲生町1丁目 -
5.8万円
58,000円
-
1R
愛知県名古屋市西区歌里町
店舗情報
お電話での物件問い合わせは無料通話で!(直営店のみ)
0001-S000098583-0010
- 浄心店
-
この物件で来店予約- 来店予約フォーム -
-
無料通話番号を表示
- 地下鉄鶴舞線 浄心駅(徒歩1分)
- Tel: 052-531-3451
- 店舗詳細情報
このお部屋にお問い合わせ
あわせて店舗への来店を希望のお客様は、上の希望店舗の来店予約フォームをご利用ください(直営店舗のみ)
Sorry,Japanese & English only. 日本語・英語のみ対応しております。ご了承ください。
- ※取扱形態は媒介(先物)です。 / お部屋の情報は随時更新です / 各種情報と現況に差異がある場合は、現況優先となります。 / 保証会社の審査があります。 / 契約一時金は、契約時に借主より貸主に支払われ返還されない金銭です。

この物件のかんたんお問合せフォーム
お電話でお問合せ(無料)
外観・間取り図

























愛知県名古屋市西区新道2丁目