storia栄生North 物件詳細情報
このお部屋は募集を終了しました
ただいまこのお部屋は入居募集を終了しており、募集時の情報となっております。お部屋探しの参考としてご利用ください。募集が再度開始しましたら、こちらのページで詳細情報を掲載の上募集開始致します。情報掲載日:2025/04/25
| 沿線・駅 所在地 |
間取り 専有面積 |
種別 建築年月日 |
|
|---|---|---|---|
|
名鉄名古屋本線 東枇杷島駅(徒歩6分)
愛知県名古屋市西区枇杷島3丁目 |
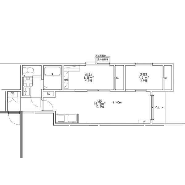
2LDK 40.08m2 |
アパート 2025年7月 |
|
ミニミニの仲介手数料は家賃の55%(税込)です。※直営店は全店対象。但し、駐車場・店舗・事務所・業者仲介及び紹介契約は対象外。※FC店舗は対象外ですので、各店にお問い合わせください。
この物件のお問い合わせ番号 0001-S000092203-0008
設備
| 部屋設備 | ガス給湯 / 浴室給湯あり / キッチン給湯あり / 洗面所給湯あり / TV付モニターホン / 下駄箱 / ガスコンロ(コンロ(2口)) / エアコン / フローリング / バルコニー / 洋式トイレ / トイレ電源有 / シャワー / 浴室乾燥機 / 洗髪洗面化粧台 / 洗面化粧台 / 室内洗濯機置場 / バストイレ別 / 保証人不要 / 角部屋 / 2人入居 / シャワー付トイレ / クロゼット / 洗面所独立 / システムキッチン / オンライン内見 / オンライン接客 |
|---|---|
| 建物設備 | オートロック / 宅配ボックス / ペット可(犬・猫可) / BSアンテナ / ネット利用料無料 / 敷地内ゴミ置き場 |
物件詳細
| 交通機関 | ・名鉄名古屋本線 東枇杷島駅(徒歩6分) ・名鉄名古屋本線 栄生駅(徒歩10分) ・名鉄名古屋本線 西枇杷島駅(徒歩15分) | ||||
|---|---|---|---|---|---|
| 構造 | 木造 | 総階数 | 3階建て | ||
| 総戸数 | 9戸 | 入居日 | 入居不可(募集終了) | ||
| 飲用水 | 公営 | ガス | プロパン | 排水 | 公共下水 |
| 給湯方式 | ガス給湯(浴室給湯あり・キッチン給湯あり・洗面所給湯あり) | ||||
この物件のお問い合わせ番号 0001-S000092203-0008
類似物件一覧
-
6.3万円
63,000円
-
-
6.5万円
130,000円
-
2DK
愛知県名古屋市西区香呑町1丁目 -
6.5万円
65,000円
-
2LDK
愛知県名古屋市西区中小田井1丁目 -
6.9万円
-
-
2LDK
愛知県名古屋市西区枇杷島4丁目 -
6.5万円
-
-
2LDK
愛知県名古屋市西区歌里町 -
5.2万円
-
-
2DK
愛知県名古屋市西区中小田井3丁目 -
6.7万円
-
-
2LDK
愛知県名古屋市西区新道1丁目 -
6.3万円
-
-
2LDK
愛知県名古屋市西区比良4丁目 -
6.5万円
65,000円
-
2LDK
愛知県名古屋市西区平中町 -
5.7万円
-
-
2LDK
愛知県名古屋市西区赤城町 -
7.6万円
-
-
2LDK
愛知県名古屋市西区上小田井1丁目 -
5.5万円
55,000円
-
2DK
愛知県名古屋市西区上小田井1丁目
店舗情報
お電話での物件問い合わせは無料通話で!(直営店のみ)
0001-S000092203-0008
- 浄心店
-
この物件で来店予約- 来店予約フォーム -
-
無料通話番号を表示
- 地下鉄鶴舞線 浄心駅(徒歩1分)
- Tel: 052-531-3451
- 店舗詳細情報
このお部屋に似ている物件を問い合わせる
あわせて店舗への来店を希望のお客様は、上の希望店舗の来店予約フォームをご利用ください(直営店舗のみ)
Sorry,Japanese & English only. 日本語・英語のみ対応しております。ご了承ください。
- ※各種情報と現況に差異がある場合は、現況優先となります。

似た物件を問い合わせる
お電話でお問合せ(無料)
間取り図

愛知県名古屋市西区中小田井1丁目