プライムハイム本山 物件詳細情報
| 沿線・駅 所在地 |
賃料 共益費(管理費) |
保証金 礼金 |
間取り 専有面積 |
種別 建築年月日 |
|
|---|---|---|---|---|---|
|
地下鉄東山線 本山駅(徒歩7分)
愛知県名古屋市千種区本山町1丁目 |
125,000円 3,500円 |
125,000円 125,000円 |
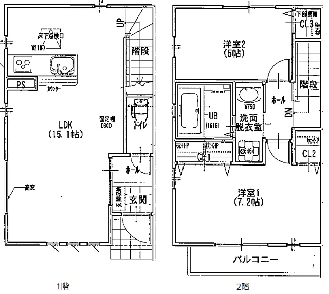
2LDK 69.14m2 |
テラスハウス 2015年3月 |
|
ミニミニの仲介手数料は家賃の55%(税込)です。※直営店は全店対象。但し、駐車場・店舗・事務所・業者仲介及び紹介契約は対象外。※FC店舗は対象外ですので、各店にお問い合わせください。
この物件のお問い合わせ番号 0001-S000044214-0003
本山駅へ平坦な道でアクセスできる好立地の1棟2戸テラスハウスタイプの物件です。閑静な住宅街の中にあり住環境良好。エアコンが2機(1階リビングと2階洋間)設備でついています。

- 名古屋市立東山小学校

- 名古屋市立城山中学校

- 猫洞保育園

- 名古屋猫洞郵便局

- 愛知学院大学歯学部附属病院

- 三井住友銀行本山支店

- マックスバリュ本山店

- ローソン千種楠元町店

- ココカラファイン猫洞店

- CoCo壱番屋千種区本山店
設備
| 部屋設備 | ガス給湯 / 浴室給湯あり / キッチン給湯あり / 洗面所給湯あり / TV付モニターホン / ガスコンロ(コンロ(3口)) / エアコン / ベランダ / 洋式トイレ / 洗面化粧台 / 室内洗濯機置場 / バストイレ別 / 保証人不要 / 角部屋 / 2人入居 / クロゼット2ヶ所 / クロゼット3ヶ所 / クロゼット / 洗面所独立 / メゾネット / カウンターキッチン / システムキッチン / オンライン内見 / オンライン接客 / IT重説 |
|---|---|
| 建物設備 | 特約有り / 敷地内ゴミ置き場 |
物件詳細
| 交通機関 | ・地下鉄東山線 本山駅(徒歩7分) ・地下鉄名城線 本山駅(徒歩7分) ・地下鉄東山線 東山公園駅(徒歩14分) | ||||
|---|---|---|---|---|---|
| 構造 | 木造 | 方位 | 南 | 階数/総階数 | 1階/1階建て |
| 総戸数 | - | 駐車場 | 11,000円 | 入居日 | 2026年5月上旬 |
| 環境 | 名古屋市立東山小学校 (560m) / 名古屋市立城山中学校 (950m) / 猫洞保育園 (225m) / 名古屋猫洞郵便局 (402m) / 愛知学院大学歯学部附属病院 (969m) / 三井住友銀行本山支店 (514m) / マックスバリュ本山店 (582m) / ローソン千種楠元町店 (386m) / ココカラファイン猫洞店 (450m) / CoCo壱番屋千種区本山店 (495m) | ||||
| 内装代 | - | 償却 | 100.0% | 保険 | 損保要 |
| 更新料 | - | 水道料金等預かり金 | - | 特記事項 | - |
| 飲用水 | 公営 | ガス | 都市 | 排水 | 公共下水 |
| 給湯方式 | ガス給湯(浴室給湯あり・キッチン給湯あり・洗面所給湯あり) | ||||
その他の費用
| 一時 | 入居安心サービス料:17,600円/消毒料:17,600円/駐車場紹介料:11,000円/防災セット:14,400円/ファイテック消火剤:4,800円/鍵交換料:22,000円 |
|---|---|
| 他 | 家賃保証会社 初回保証料50% 年更新料10,000円 |
この物件のお問い合わせ番号 0001-S000044214-0003
類似物件一覧
-
13.4万円
-
1.0ヶ月
-
14.5万円
290,000円
-
2LDK
愛知県名古屋市千種区桜が丘 -
13.0万円
202,500円
270,000円
2LDK
愛知県名古屋市千種区千種3丁目 -
15.0万円
150,000円
1.0ヶ月
2LDK
愛知県名古屋市千種区内山1丁目 -
14.5万円
-
-
2LDK
愛知県名古屋市千種区菊坂町2丁目 -
11.2万円
112,000円
1.0ヶ月
2LDK
愛知県名古屋市千種区橋本町1丁目 -
10.9万円
-
-
2LDK
愛知県名古屋市千種区内山3丁目 -
9.8万円
98,000円
-
2LDK
愛知県名古屋市千種区向陽町3丁目 -
15.0万円
600,000円
-
2LDK
愛知県名古屋市千種区向陽町2丁目 -
8.8万円
-
-
2SLDK
愛知県名古屋市千種区御影町1丁目 -
11.5万円
115,000円
-
2LDK
愛知県名古屋市千種区星ケ丘2丁目 -
9.7万円
97,000円
1.0ヶ月
2LDK
愛知県名古屋市千種区山添町1丁目
店舗情報
お電話での物件問い合わせは無料通話で!(直営店のみ)
0001-S000044214-0003
- 本山店
-
この物件で来店予約- 来店予約フォーム -
-
無料通話番号を表示
- 地下鉄東山線 本山駅(徒歩1分)
- Tel: 052-783-8132
- 店舗詳細情報
- 星ヶ丘店
-
この物件で来店予約- 来店予約フォーム -
-
無料通話番号を表示
- 地下鉄東山線 星ヶ丘駅(徒歩1分)
- Tel: 052-781-3123
- 店舗詳細情報
このお部屋にお問い合わせ
あわせて店舗への来店を希望のお客様は、上の希望店舗の来店予約フォームをご利用ください(直営店舗のみ)
Sorry,Japanese & English only. 日本語・英語のみ対応しております。ご了承ください。
- ※取扱形態は媒介です。 / お部屋の情報は随時更新です / 各種情報と現況に差異がある場合は、現況優先となります。 / 保証会社の審査があります。 / 契約一時金は、契約時に借主より貸主に支払われ返還されない金銭です。

この物件のかんたんお問合せフォーム
お電話でお問合せ(無料)
外観・間取り図

























愛知県名古屋市千種区汁谷町